Below is a sheet-by-sheet detail on what is included in a house plan set.

The cover sheet introduces your project and organizes the entire plan set. It includes a drawing index, general construction notes, code references, and an exterior elevation preview or rendering. It may also include a room schedule for trim, molding and other finishes.
General notes and code references will need to be reviewed and updated based on your local requirements- coordinated by your builder.

This sheet shows the placement of the home on the lot, including building footprint, setback requirements, driveway and walkways.
This page is specific to your property. By default, we include a placeholder page for the site plan. Your builder will coordinate the necessary surveys and local professionals to create the site plan sheet for your unique property.

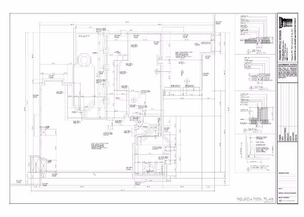
Includes dimensions and construction notes for footings, slabs, and structural foundations. Reinforcement and structural sizing must be finalized by a local licensed engineer.
Your builder will typically coordinate adjustments/finalization of this sheet and any soil test and other requirements for your specifc property.

Fully dimensioned floor plans for each level, showing room layouts, walls, doors, windows, kitchen/bath placement, and key construction notes. Essential for bidding and building.
Depending on the size of the house, this may span several sheets.

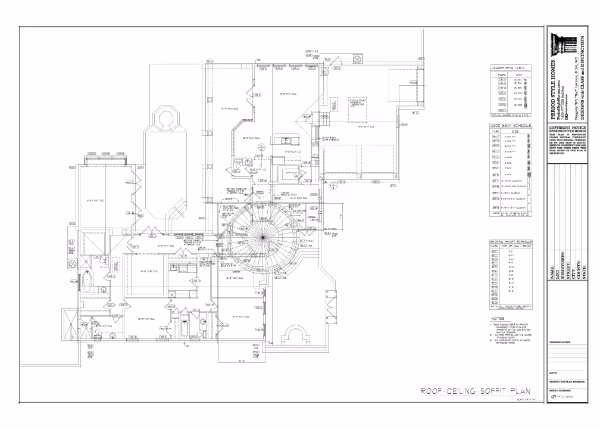
Depicts roof geometry, slopes, ridges, valleys, and soffit/eave details. Used by truss manufacturers and roofers to accurately build roof framing.


Four-sided building elevations showing architectural style, materials, roof heights, window/door placement, and key stylistic details unique to your home’s regional aesthetic.
Exterior finishes and materials will be labeled, along with grade height, finished floor heights, top of wall heights, and eave and roof heights.
These may span several sheets.

Vertical slices through the home demonstrating structural and construction relationships. Clarifies how the floors, walls, ceilings and roof connect.

Technical details illustrating typical wall assemblies, framing intersections, waterproofing, and critical construction details used by the builder.

Lists every door and window with sizes, operations, and types. Details sills, headers, jambs, and more. Helps builders order correctly and avoid costly errors.

Elevations of kitchens, bathrooms, and built-ins showing cabinet layouts, finish notes, and dimensions.
In this example the Interior Elevations are on the same sheet as the Door & Window Schedules.

Provides suggested switch, light, and outlet layout. Final wiring and load calculations must be performed by a licensed electrician. This is a basic layout that gives them a head start.
Your builder will coordinate final electrical plans with a local licensed electrician.

While some of our plans will come with basic layouts for these sheets, it is the responsibility of your local trades (coordinated by your builder) to provide the final drawings that will be used for this section- specific to your preferences and local conditions and codes.
HVAC Layout
This sheet contains a diagram of typical HVAC supply/return locations. Some of our plans will come with a preliminary HVAC layout, however the final duct design and sizing must be completed by a licensed HVAC professional.
Plumbing Layout
Shows fixture locations and general plumbing notes. Final pipe sizing/routing is completed by a licensed plumber.
Use the form below to request a Sample Plan of our "s10-1148 Casa Murillo" home design. You'll receive a print-quality PDF (with our copyright watermark) that allows to study what is typically included in a plan set.